AQ Consultores Inmobiliarios ofrece en venta fantástico duplex en el Barrio de Chueca.
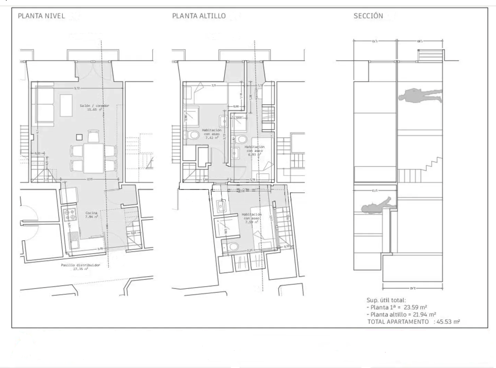
Posicionado en 1 planta exterior distribuido en 70m2 con balcón a la calle. Dos con ventana a la calle.
En la primera planta toda diáfana, encontramos salón comedor con cocina completamente equipada.
En la segunda planta encontramos tres habitaciones con tres baños
Comunidad 20€
IBI 210€
Ubicado en el Barrio de Chueca, una de las zonas más demandadas de la ciudad junto al Metro de Chueca , disfrutarás de un lugar totalmente reformado , cómodo y con lo necesario para poder disfrutarlo.














